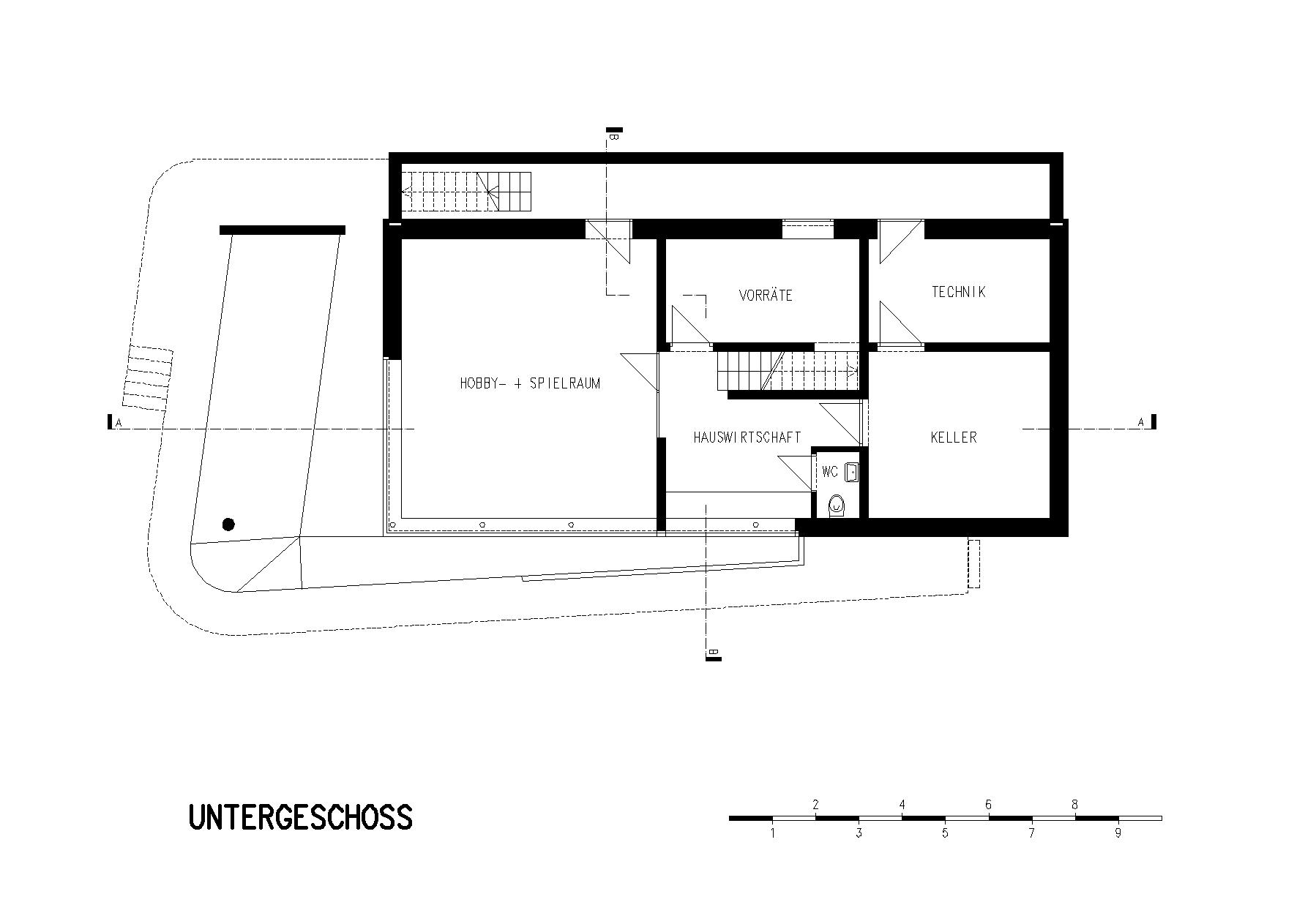
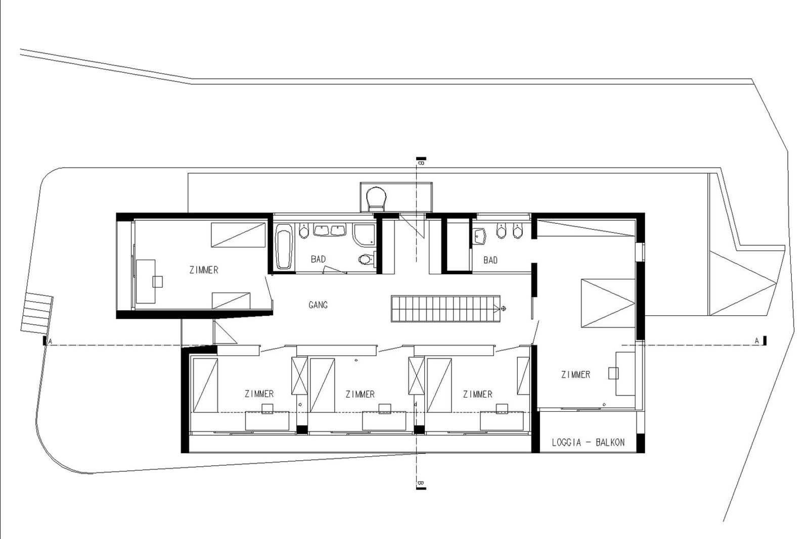
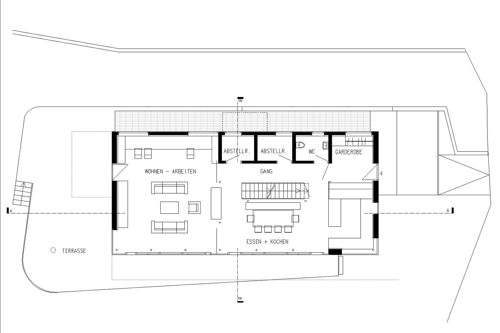
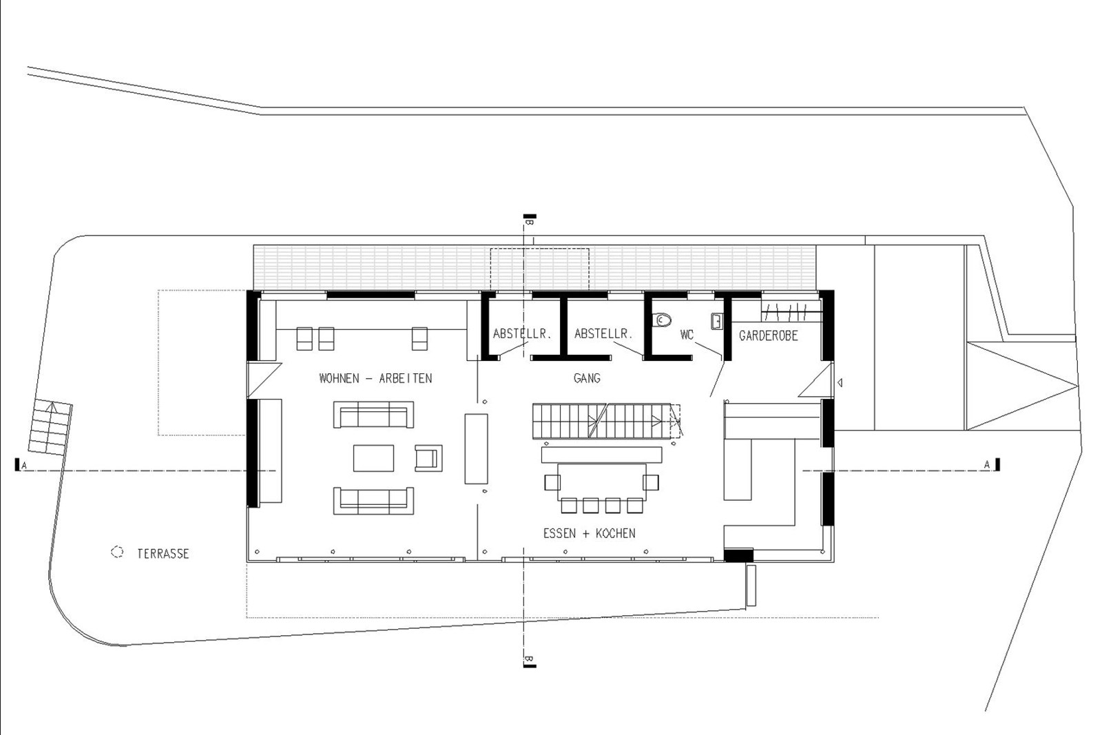
Das Wohnhaus S_H verbindet moderne Architektur mit den Bedürfnissen der Familie und dem dörflichen Umfeld auf über 1000 m Höhe. Mit dem Rücken zur Dorfstraße im Norden öffnet sich das Haus großzügig nach Süden zu Garten und Bergen. Vom Haupteingang im Osten führt die Achse durch Kochen, Essen und Wohnen zur Westterrasse, vorgelagert ein breiter Balkon. Nördlich liegen Garderobe, WC, Abstellraum und Speisekammer. Eine skulpturale Holztreppe im Zentrum erschließt das Obergeschoss mit Schlafzimmern, Bad und Loggia. Große Südfenster bieten Ausblicke auf Kronplatz und Dolomiten, ein zweiter Zugang ermöglicht spätere Teilung des Hauses. Kellerräume wie Hauswirtschaftsraum und Kinderspielzimmer nutzen die Südhanglage für Tageslicht und Belüftung. Restaurierte Elemente wie Wohnzimmerschrank und Türen verbinden Tradition mit modernen Materialien wie Putz, Holz und Sichtbeton.

Details

  • LAGE:
    Olang
  • AUFTRAGGEBER:
    privat
  • PLANUNG:
    2003
  • BAUZEIT:
    2004
Fotograf/In: Jürgen Eheim, Giulio Monteduro
[ nebenbei ]