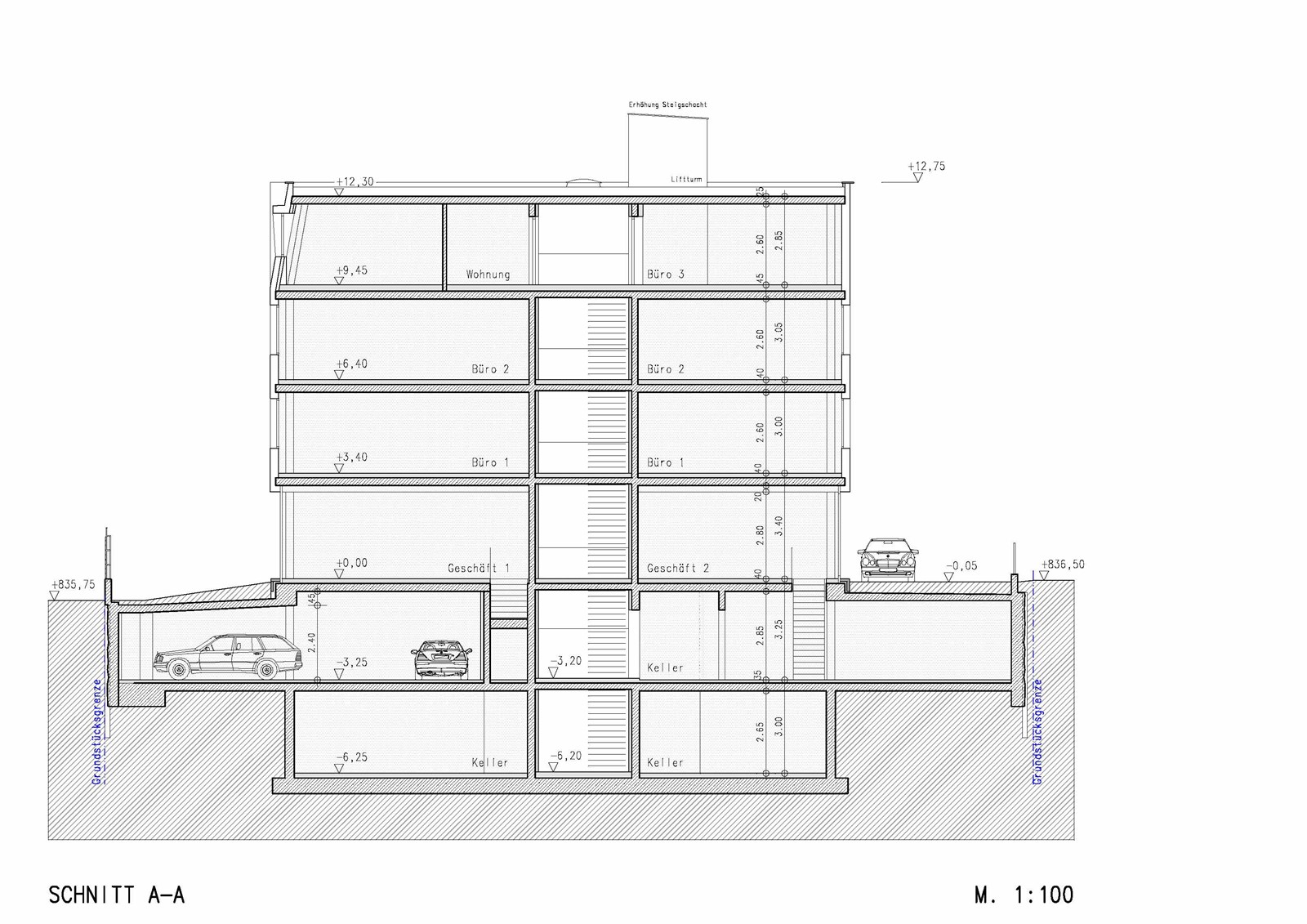
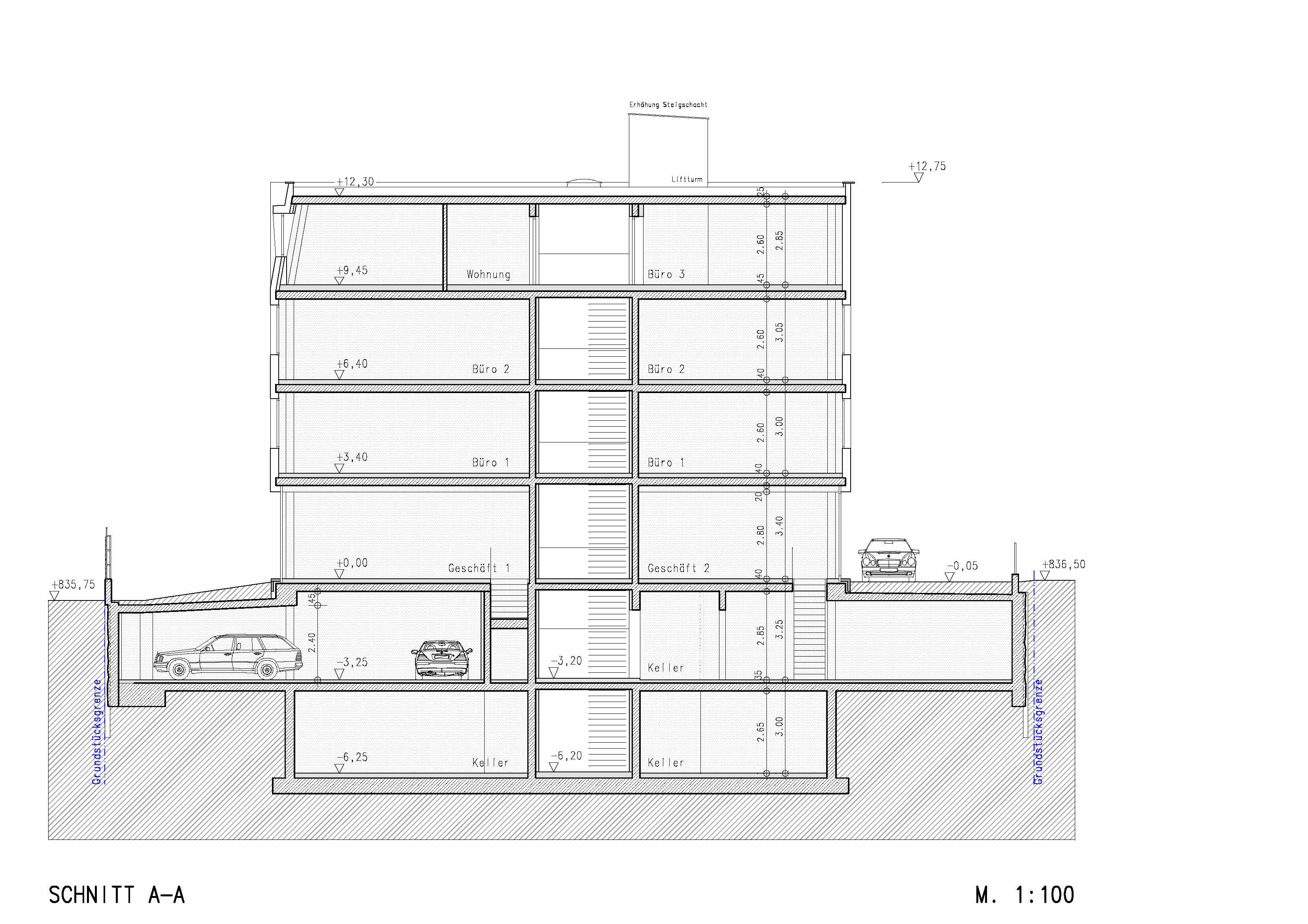
Im Zentrum von Bruneck, knapp außerhalb der Altstadt, entstand anstelle der baufälligen „Villa Maria“ ein modernes Bürogebäude für Berater in Wirtschafts-, Steuer- und Arbeitsrecht. Das Bauwerk orientiert sich am Grundstück: Ein vorspringendes Obergeschoss im Süden schafft zusätzliche Kundenstellplätze und eine klare Ausrichtung zur Hauptstraße, ein kleinerer Baukörper im Westen verstärkt die Straßenpräsenz. Das Gebäude umfasst sechs Geschosse, davon vier oberirdisch und zwei unterirdisch. Im zweiten Untergeschoss liegen Archive und Lagerräume, darüber eine Tiefgarage mit 17 Stellplätzen und Lagerflächen. Im Erdgeschoss befinden sich zwei Geschäftslokale mit Lagerräumen, darüber zwei Obergeschosse mit jeweils rund 300 m² Büroflächen. Das Dachgeschoss wurde später in Holzbauweise aufgestockt als zusätzlicher Wohn- und Arbeitsbereich. Konstruktion aus Stahlbetonstützen, Vollbetondecken, Ziegel- und Betonscheiben, die Fassade mit bronzefarbenen Eternitplatten, Aluminiumfenster und flexible Innenräume ermöglichen moderne Nutzung. Niedrigenergiehausstandard, kontrollierte Lüftung, Erdregister zur Kühlung, dazu ein durchgängige

Details

  • Lage:
    Bruneck
  • Volumen:
    6.393 m³
  • Auftraggeber:
    AICHNER Real KG
  • Planung:
    2001 und 2006
  • Bauzeit:
    2002/03 und 2006/7
Fotograf/In: Paul Ott, Albrecht Immanuel Schnabel, aichner_seidl ARCHITEKTEN
[ nebenbei ]