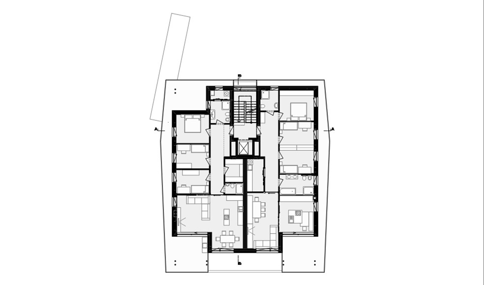
Der klare Durchführungsplan mit engen Baugrenzen bestimmte die Form des Gebäudes und erlaubte maximal zwei optimal nach Süden ausgerichtete Wohnungen pro Geschoss. Unter dem Baukörper liegen Keller und Tiefgarage mit 22 Stellplätzen, Technikräumen und Abteilen, erschlossen über eine gemeinsame Fahrgasse, die sich unter der gesamten Zone hindurchzieht. Das zentral platzierte, nordseitige Treppenhaus aus Sichtbeton wird von Tageslicht durchflutet und eröffnet den Blick ins Ahrntal. Stützenfreie, klar gegliederte Grundrisse bieten flexible Nutzungsmöglichkeiten. Umlaufende Balkone und Loggien erweitern den Wohnraum ins Freie, schützen vor Sonne und Witterung, während verschiebbare Streckmetallelemente Sichtschutz und Fassadenspiel zugleich schaffen. Trotz der moderaten Baukosten von rund 2.000 €/m² konnte ein Gemeinschaftsraum realisiert werden – ein Ort für Feiern, Treffen oder Filmabende. Ein Farbkonzept der Künstlerin Julia Bornefeld mit fünf warmen Rottönen verleiht dem Haus eine lebendige, freundliche Ausstrahlung.

Details

  • Lage:
    Bruneck
  • Auftraggeber:
    privat
  • Planung:
    2013/2014
  • Bauzeit:
    2014/2015
Fotograf/In: Oliver Jaist
[ nebenbei ]