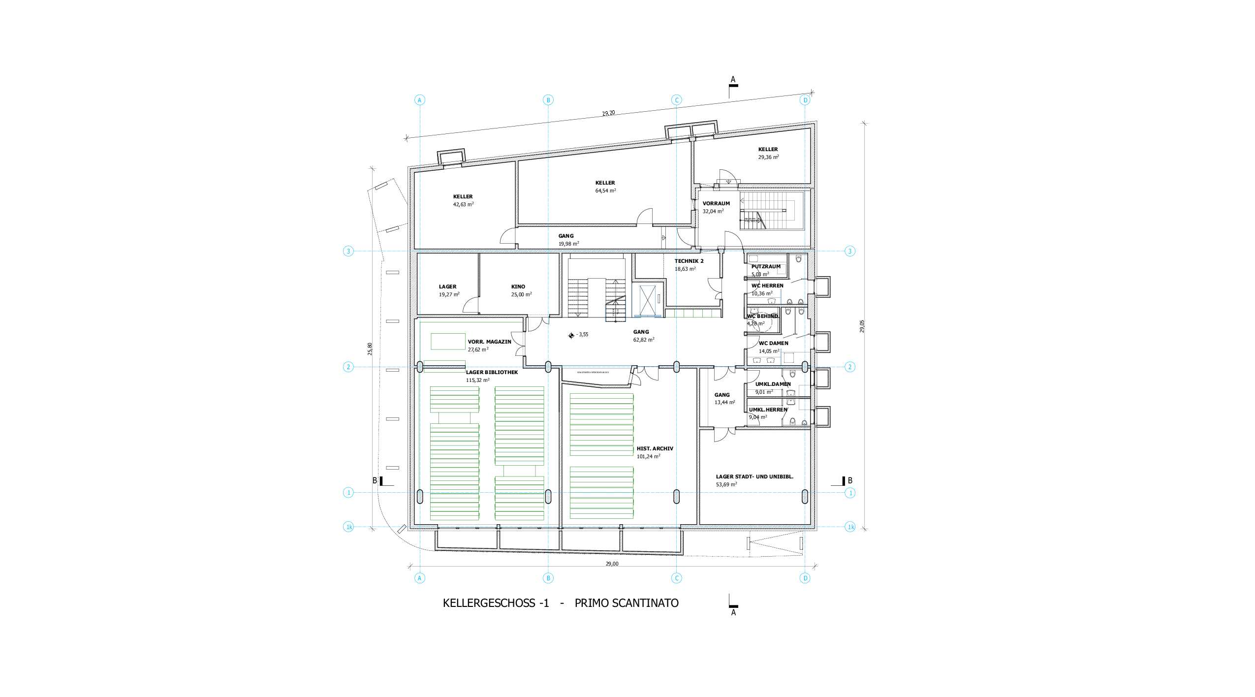
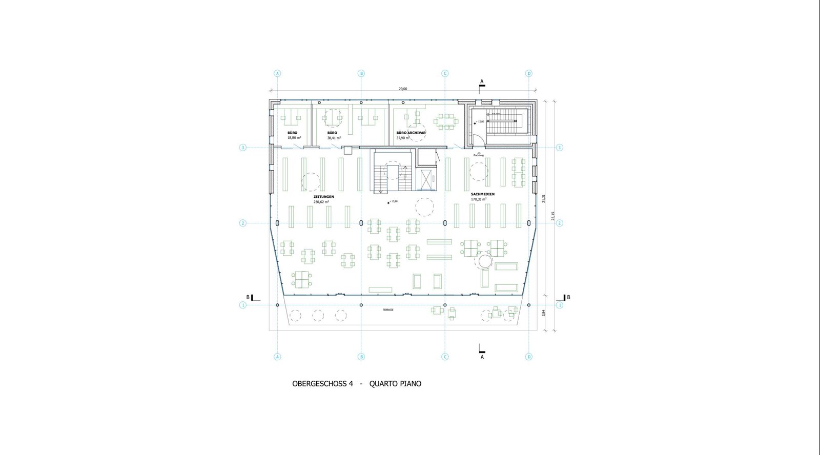
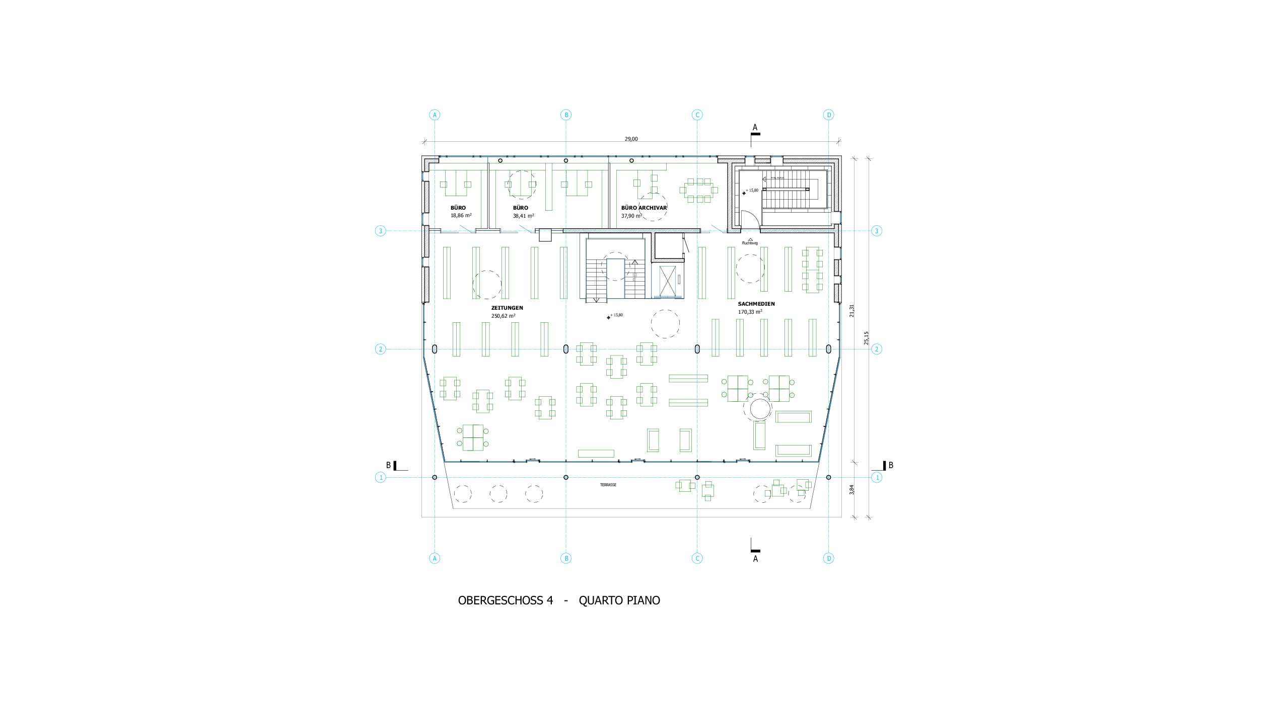
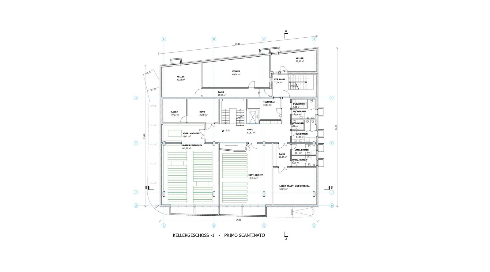
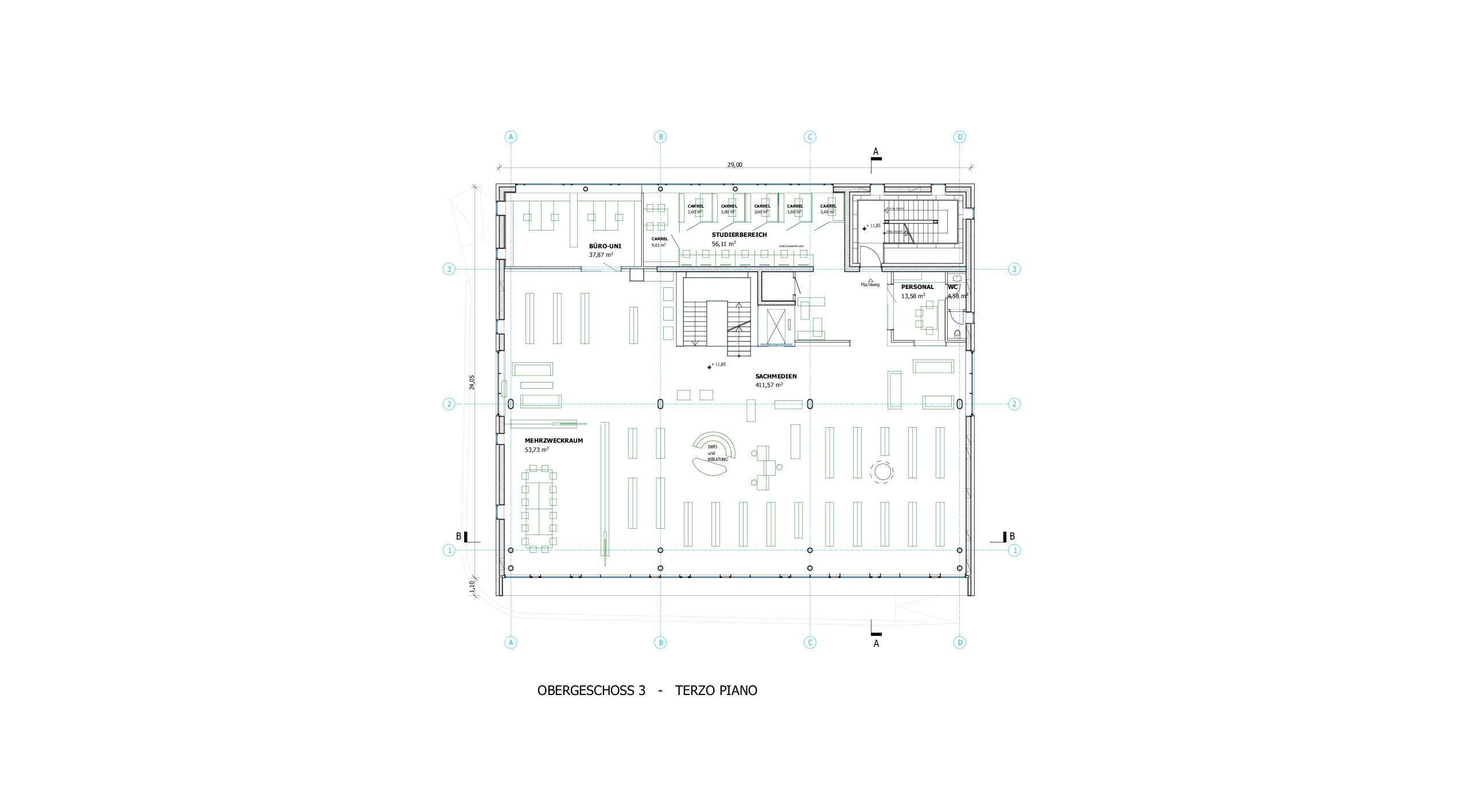
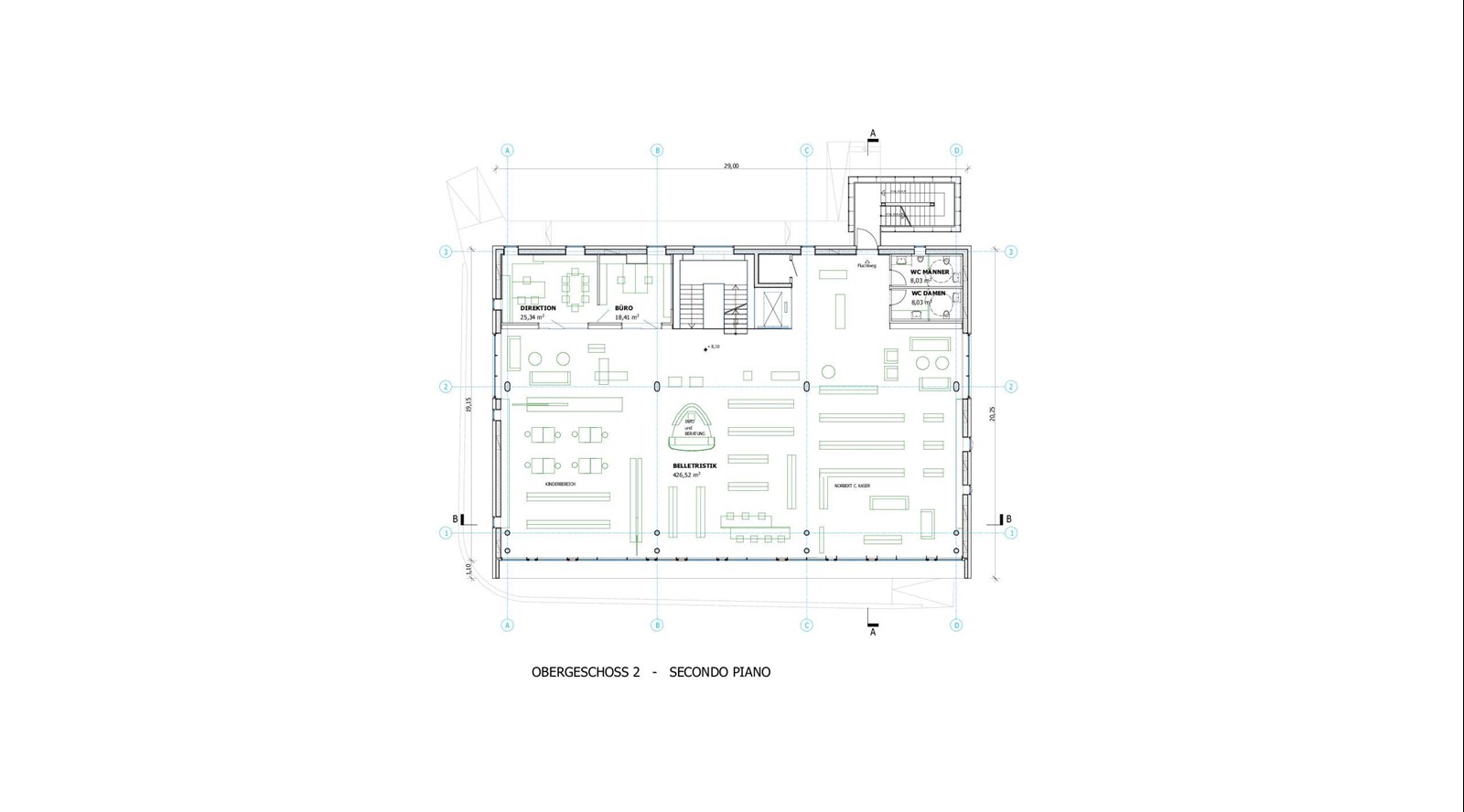
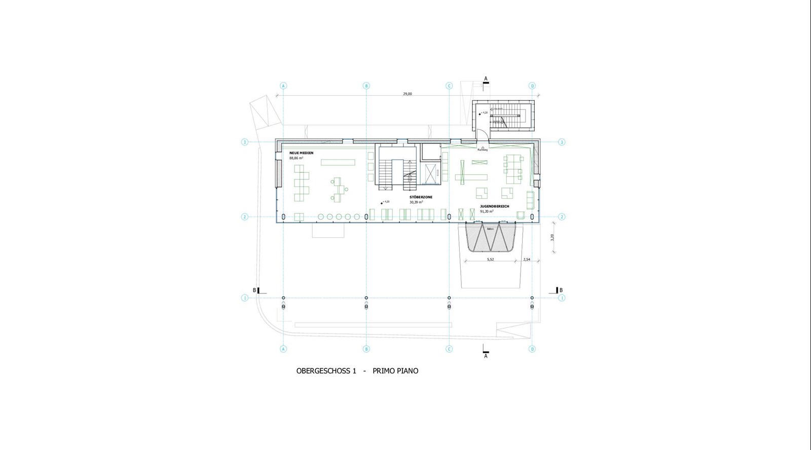
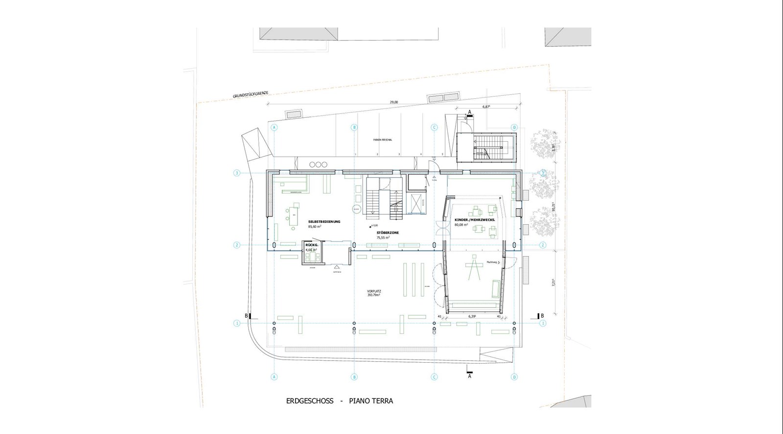
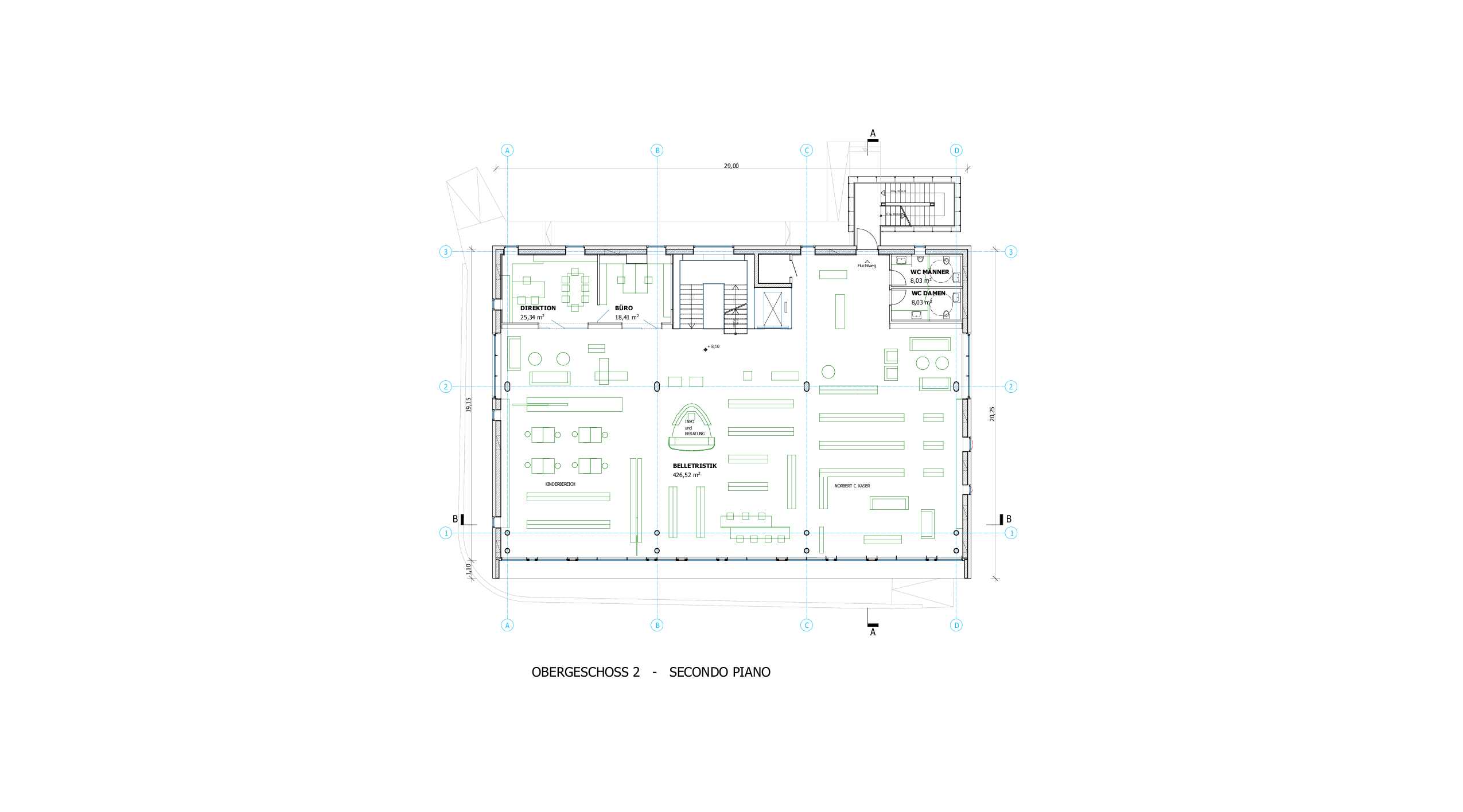
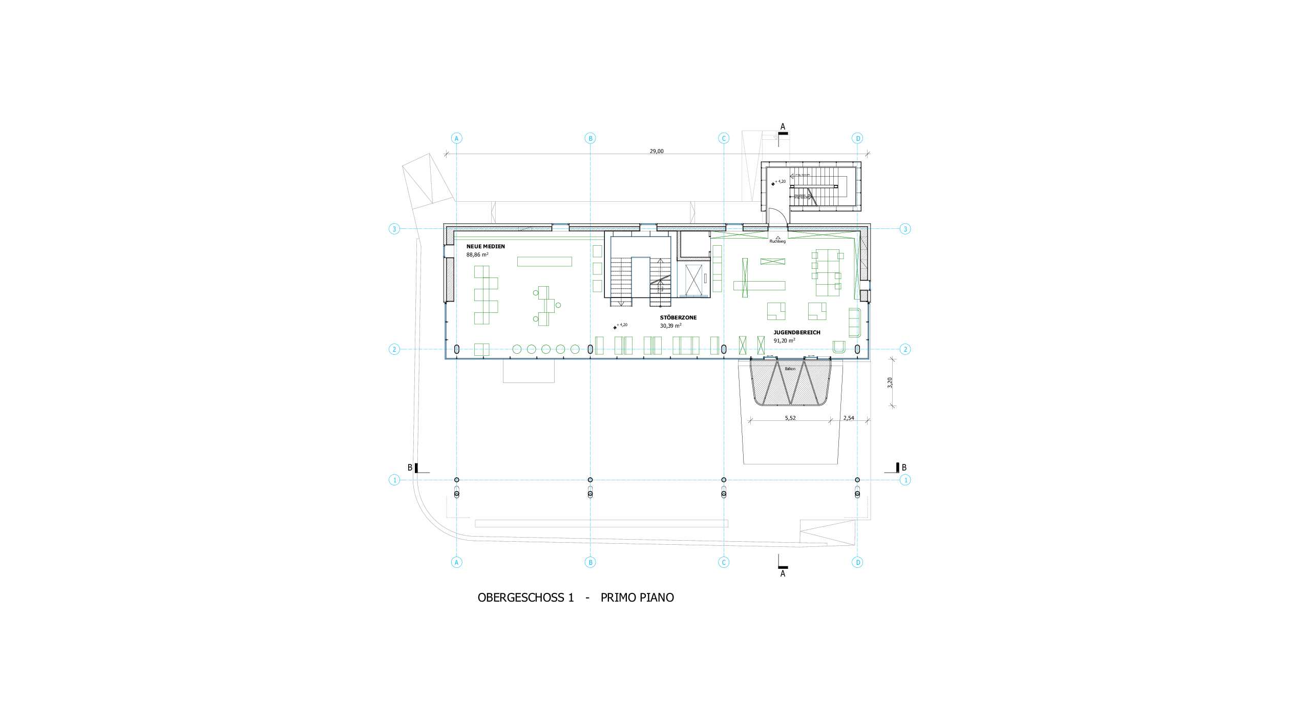
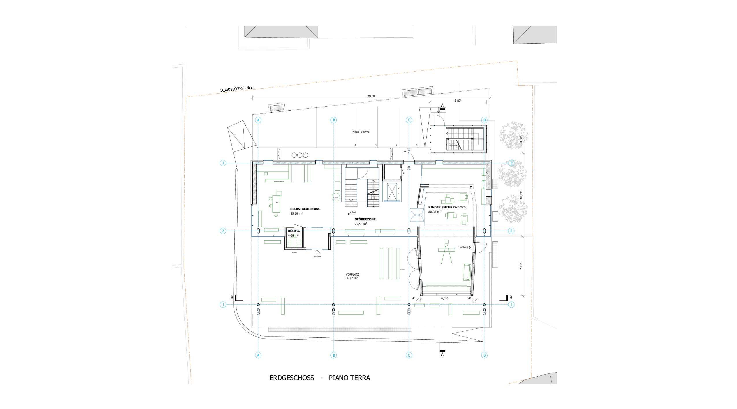
Der Bauplatz der neuen Bibliothek befindet sich nördlich der Mittelschule Meusburger und westlich, durch ein Privatgebäude abgetrennt, von Rathaus und Rathausplatz an einer Stelle von untergeordneter Wichtigkeit im Stadtgefüge. Die markante geometrische Form des Bibliotheksgebäudes und der überdeckte Vorbereich/Vorplatz geben dem Ort eine neue städtebauliche Dimension und Qualität. Das gesamte Gebäude ist ein offenes Raumgefüge, das bis auf die sanitären Einrichtungen und die vertikale Erschließung flexibel auf die sich verändernden Nutzungen angepasst werden kann. Die wenigen temporär abtrennbaren Bereiche - Besprechungs- und Vorlesungsräume - werden frei im Raum aus Regalen, Glaswänden und anderen mobilen Trennelementen platziert und können mit Stoffvorhängen zugezogen oder geöffnet werden.

Details

  • Lage:
    Bruneck, BZ
  • Volumen:
    14.520 m³
  • Auftraggeber:
    Stadtgemeinde Bruneck, Freie Universität Bozen
  • Planung:
    2003/04 (WB) / 2004/10 (Erweiterungen)
  • Bauzeit:
    2011/13
Fotograf/In: Jürgen Eheim, aichner_seidl ARCHITEKTEN
[ nebenbei ]