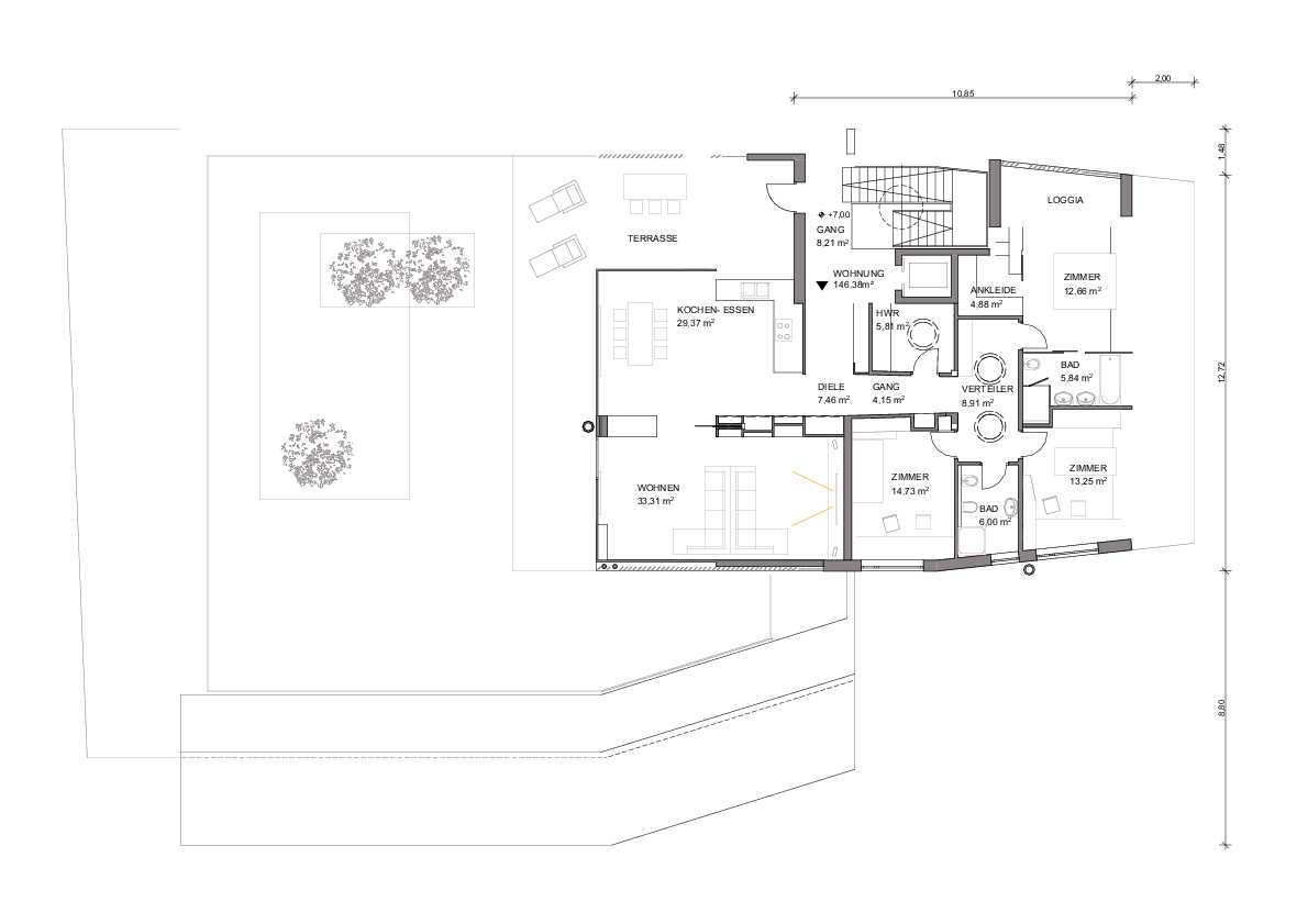
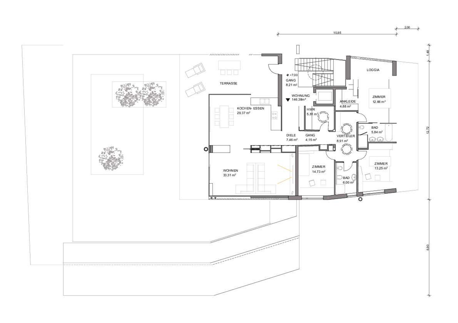
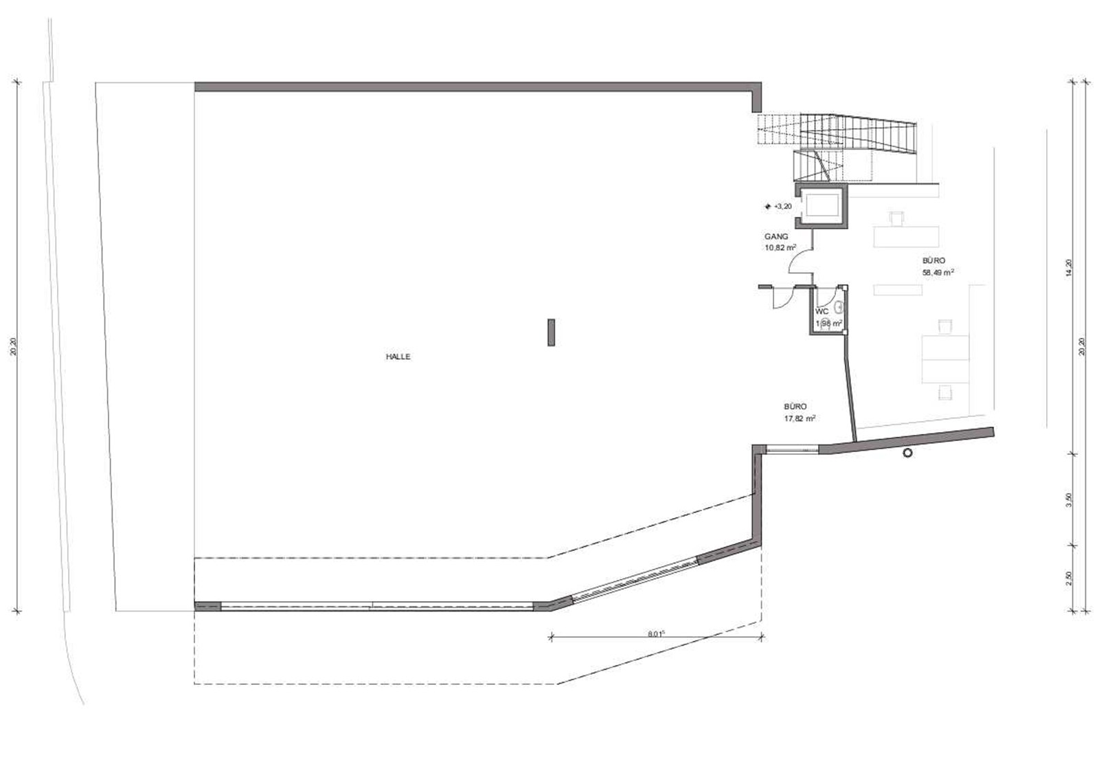
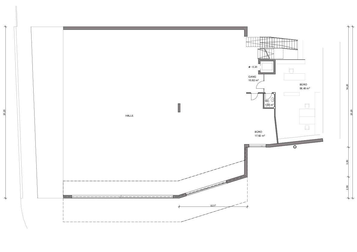
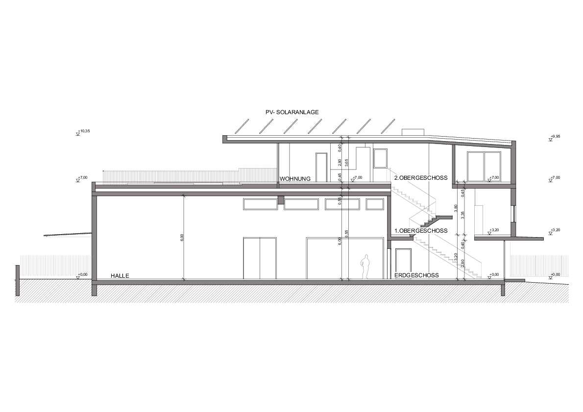
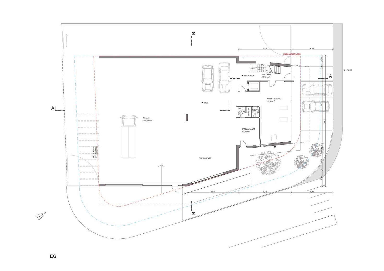
Das neue Betriebsgebäude für den mittelständischen Haustechnikbetrieb entstand 2009 nach einem gewonnenen Architekturwettbewerb von aichner_seidl ARCHITEKTEN. Es liegt am östlichen Ende der Industriezone Kiens/Ehrenburg mit Blick nach Osten über Felder und ist dreiseitig von einer breiten Erschließungsstraße umgeben, nur im Westen grenzt eine niedrige Halle an. Das Gebäude besteht aus einer Werkhalle mit Magazin- und Lagerräumen aus vorgefertigten, hochgedämmten Betonfertigteilen und einem nördlich anschließenden Verwaltungstrakt mit Showroom und Büroräumen, der von Westen gut sichtbar ist. Ein Treppenhaus an der Nordost-Ecke erschließt alle Geschosse. Im Dachgeschoss mit großer Dachterrasse liegt die Betriebswohnung, ausgeführt in Massivbauweise, gedämmt und mit weißen Faserzementplatten verkleidet. Rückspringende Teile, Loggia und Dachuntersichten sind mit unbehandelter Lärchenschalung versehen, die zusammen mit den weißen und schwarzen Platten ein harmonisches Gesamtbild erzeugen.

Details

  • Lage:
    Ehrenburg, Kiens
  • Volumen:
    1.630 m³
  • Auftraggeber:
    Baumgartner Martin KG
  • Planung:
    2009
  • Bauzeit:
    2009/11
Fotograf/In: aichner_seidl ARCHITEKTEN
[ nebenbei ]