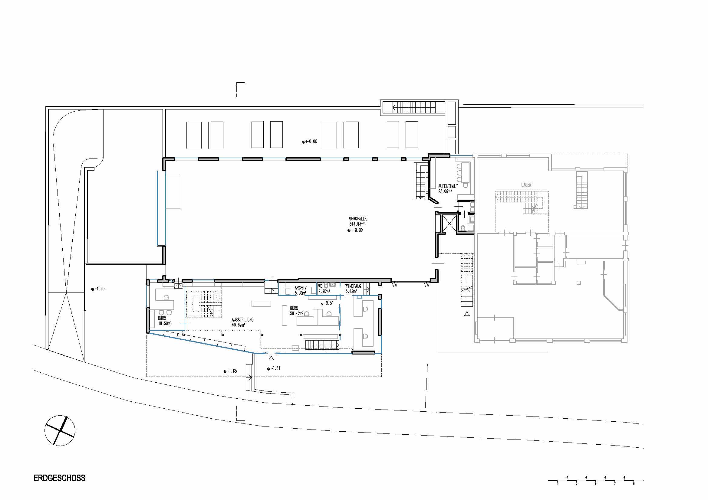
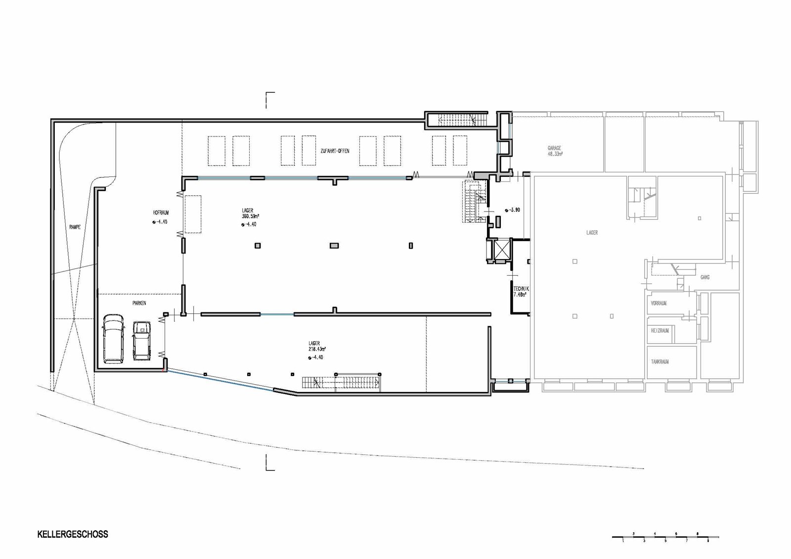
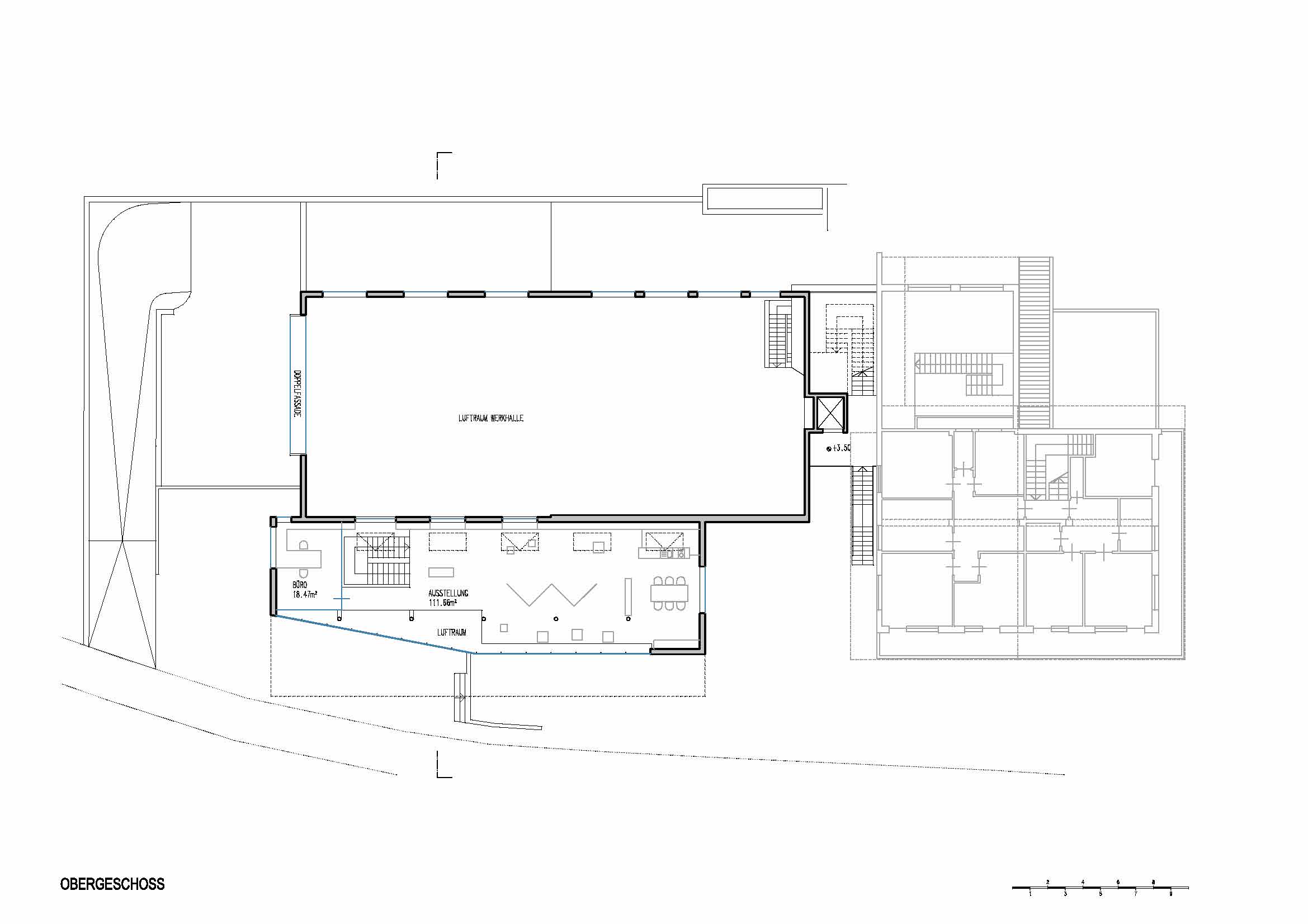
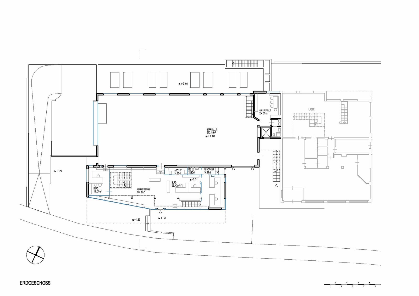
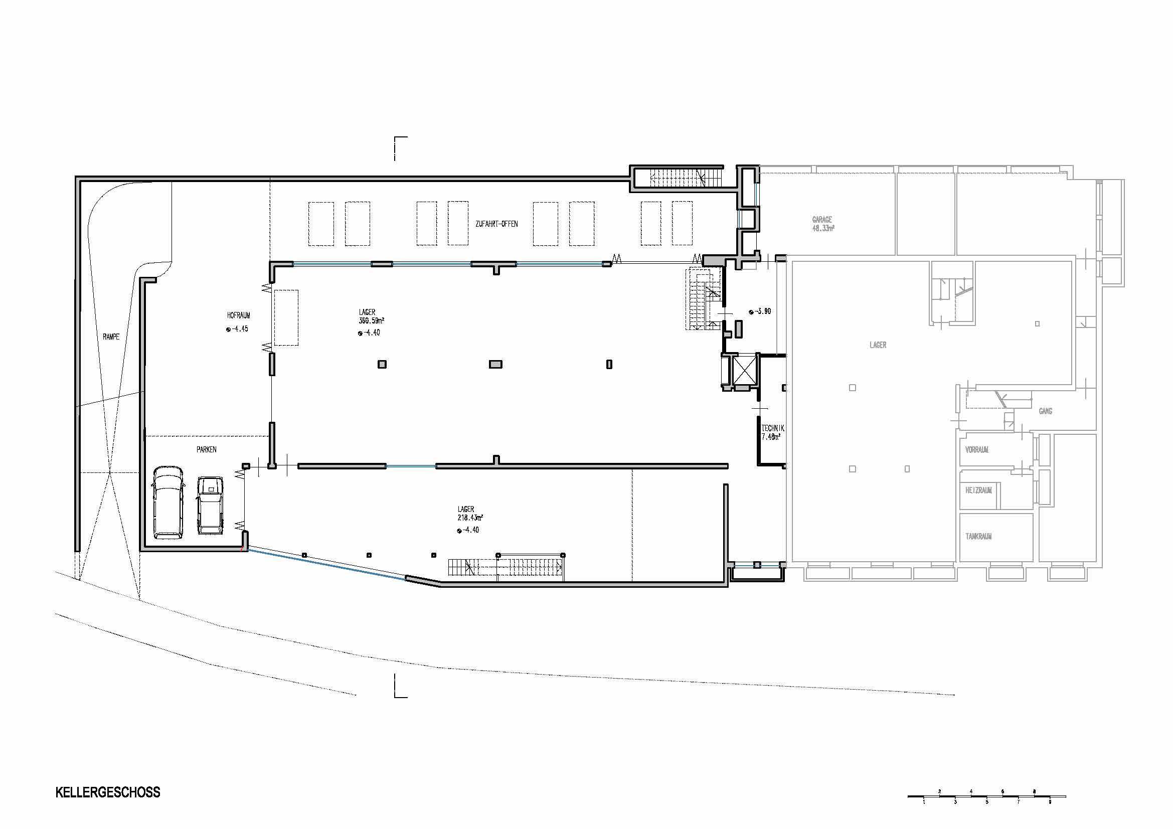
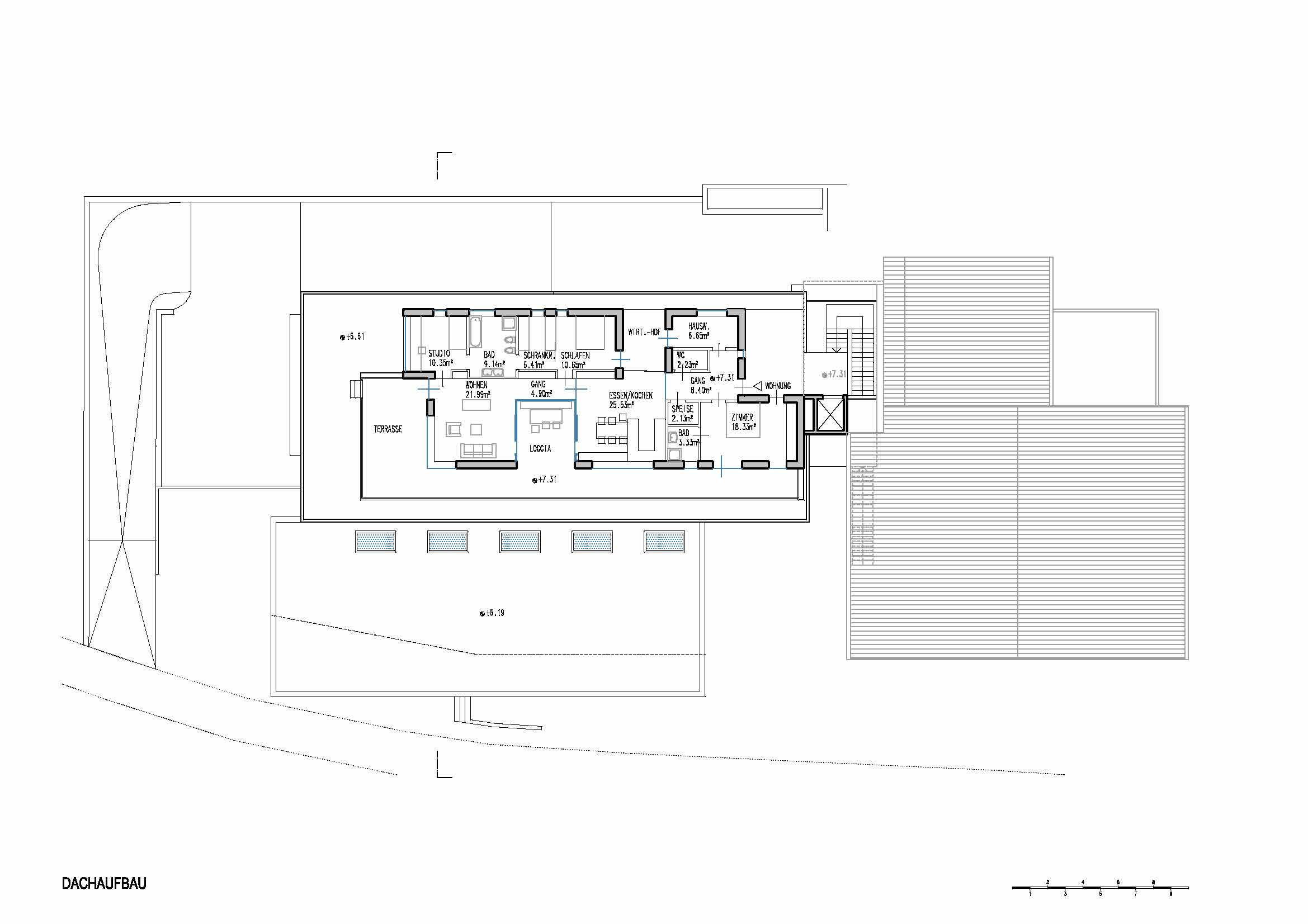
Ab 2002 wurde der Sitz von Seyr Glasbau in vier Bauabschnitten umgebaut und erweitert, während der Betrieb weiterlief. Zuerst wurden Werk- und Lagerräume im Untergeschoss vergrößert und mit neuer Rampe erschlossen, dann Werkhalle verdoppelt und Verwaltungstrakt neu gebaut. Nach Übersiedlung in die erweiterten Bereiche folgten Abbruch alter Verwaltungsteile und ein neues Treppenhaus mit Aufzug. Schließlich entstand über der Halle eine Betriebswohnung in Holzbauweise als Niedrigenergiehaus, abgeschlossen 2008. Das Gebäude an der Stegenerstraße gliedert sich in drei Baukörper: kristalliner Verwaltungs- und Ausstellungstrakt zur Straße, dahinterliegende Werkhalle mit abgesenktem Werkhof und die aufgesetzte Wohnung. Ein verglastes Treppenhaus verbindet alle Teile. Die Fassade, gestaltet mit Wilma Kammerer, kombiniert sechs Meter hohe Siebdruckverglasung, silberne Stahlpaneele und Swisspearl/ Lärche an der Wohnung. Innen prägt ein kräftiger orangefarbener Linoleumboden das Farbkonzept, ergänzt durch MDF-Möbel, Glaswände und hochwertige Einrichtung. Hochwertige Dämmung und Verglasung sichern hohe energetische Standards, die Wohnung nach Klimahaus B zertifiziert.

Details

  • Lage:
    Bruneck
  • Volumen:
    5.504 m³
  • Auftraggeber:
    SEYR Glasbau GmbH
  • Planung:
    2001/02
  • Bauzeit:
    2003/07
Fotograf/In: Jürgen Eheim, aichner_seidl ARCHITEKTEN
[ nebenbei ]