Projekte
Kultur Soziales Sport
Bibliothek Bruneck
Wohn- und Pflegeheim Mittleres Pustertal OLANG
Sportzentrum Aldein
Clubhaus ATC Bruneck
UFO Bruneck
Mittelschule Don Milani
Geschäft und Gewerbe
Athesia Buch
Baumgartner Martin KG
Elektro W&G
Glasbau Seyr
Sodeco
Villa Maria
Kammerer Paul OHG
Tourismus
Garni Edelweiss
Residence Aichner
Hotel Petrus
Appartements Hofer
Wohnen
Wohnhaus T_N Reischach
Doppelwohnhaus ASA
Wohnhaus S_H
Wohnhaus N
Wohnhaus M
Wohnhaus MY
Tafernerhof
Wohnbebauung Ipes
Söll Stiftung Seniorenwohnungen
Wohnhaus G_O
Wohnbaugenossenschaft DeCo
Wohnhaus P
Wettbewerbe
Profil
Leistungen
Publikationen
Preise und Anerkennungen
Kontakt
ITA
Kammerer Paul OHG
Home
Projekte
Geschäft und Gewerbe
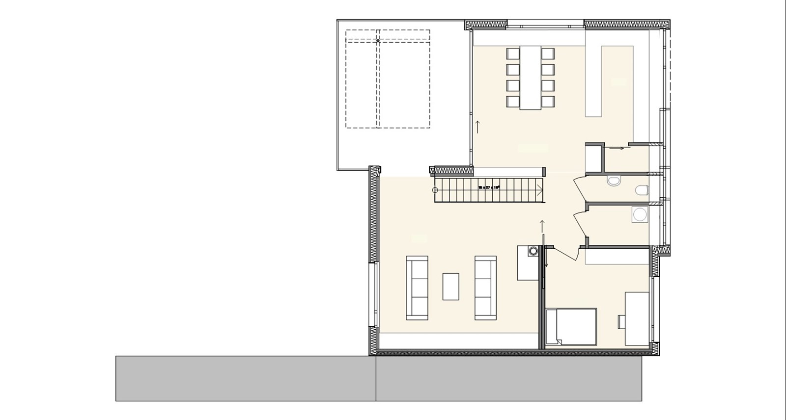
Kammerer Paul OHG
Details
Lage:
Ehrenburg, Kiens
Volumen:
2.669 m³
Auftraggeber:
Spenglerei Kammer Paul OHG
Planung:
2014
Bauzeit:
2015/16
Fotograf/In
: Oliver Jaist
[
nebenbei
]