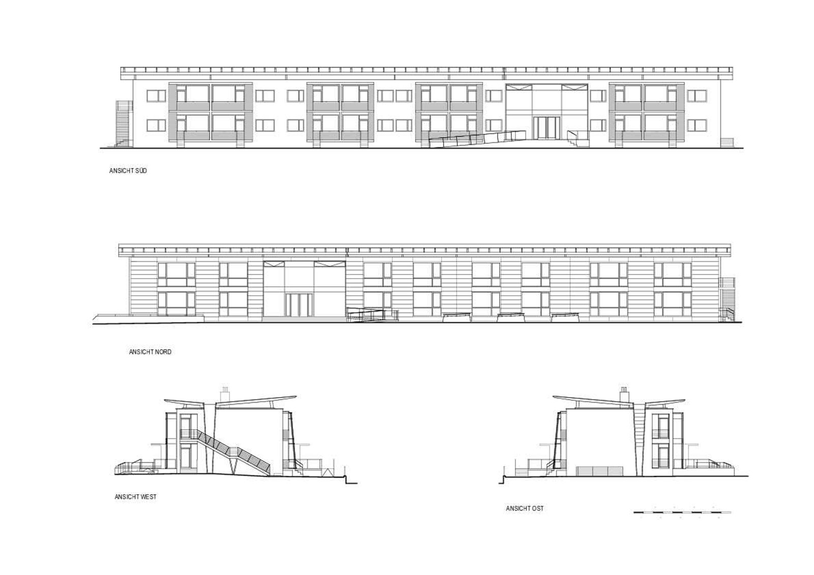
Auf der Fläche von ca. 4500 m² in Bruneck wurde 24 Wohneinheiten für das Wohnbauinstitut und 16 Seniorenwohnungen mit allgemeinen Einrichtungen für die Söll-Stiftung errichtet.
Die Seniorenwohnungen sind über großzügige, gassenartige Innengänge erschlossen, die Aufenthaltsbereiche, Begegnungsmöglichkeiten und Platz für gemeinsame Aktivitäten bieten. Jede Einheit verfügt über Terrasse oder Balkon, alle Wohnungen sind nach Süden oder Westen ausgerichtet und profitieren von viel Licht. Die Gebäudehülle ist energieeffizient ausgeführt, nachträglich mit KlimaHaus B zertifiziert. Eine gemeinsame Tiefgarage mit 45 Stellplätzen verbindet die Einheiten. Die Fassaden kombinieren Putz, Holzschalung und Faserzementplatten, die flach geneigten Dächer sind mit Titanzink gedeckt, wodurch ein harmonisches, modernes Ensemble entsteht, das Lebensqualität und Gemeinschaftsgefühl vereint.

Details

  • LAGE:
    Bruneck
  • AUFTRAGGEBER:
    privat
  • PLANUNG:
    1996
  • BAUZEIT:
    1999/01
Fotograf/In: Hermann Maria Gasser, aichner_seidl ARCHITEKTEN
[ nebenbei ]