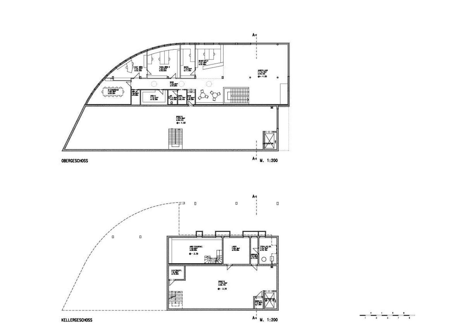
Am nördlichen Stadtrand von Bruneck, in der Industriezone Rienzfeld, liegt das Betriebsgebäude mit freiem Blick über die Felder ins Tauferer Ahrntal. Der Entwurf folgt der Form des Grundstücks und gliedert sich in zwei Baukörper: den massiven blauen Ortbetonquader des Lagers und den hochwärmegedämmten Verwaltungstrakt mit Aluminium-Wellblechverkleidung, in dem sich auch eine kleine Lampenausstellung, Werkstatt und Nebenräume befinden. Der Verwaltungskörper schmiegt sich gebogen an das Magazin an. Im ersten Obergeschoss ragt der Bereich für Ausstellung und Verwaltung weit nach Südosten aus und schafft darunter im Erdgeschoss einen großzügig überdachten Freiraum für Anlieferung und Warenausgabe sowie einen geschützten Zugang zum Haupteingang. So entsteht ein funktionaler und klar strukturierter Industriebau, der präzise auf Lage, Nutzung und Umgebung reagiert.

Details

  • Lage:
    St. Georgen, Bruneck
  • Volumen:
    5.821 m³
  • Auftraggeber:
    Elektro Walter & Georg OHG
  • Planung:
    1998
  • Bauzeit:
    1998/99
Fotograf/In: Zita Oberwalder, aichner_seidl ARCHITEKTEN
[ nebenbei ]