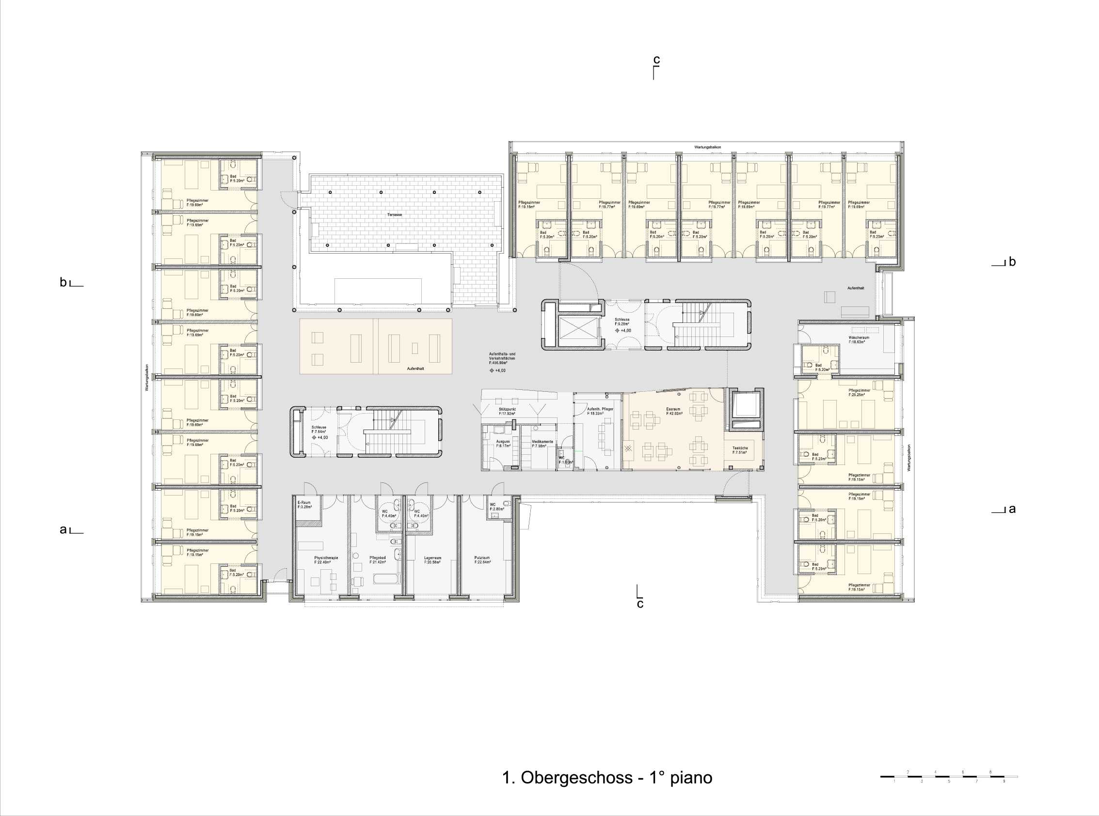
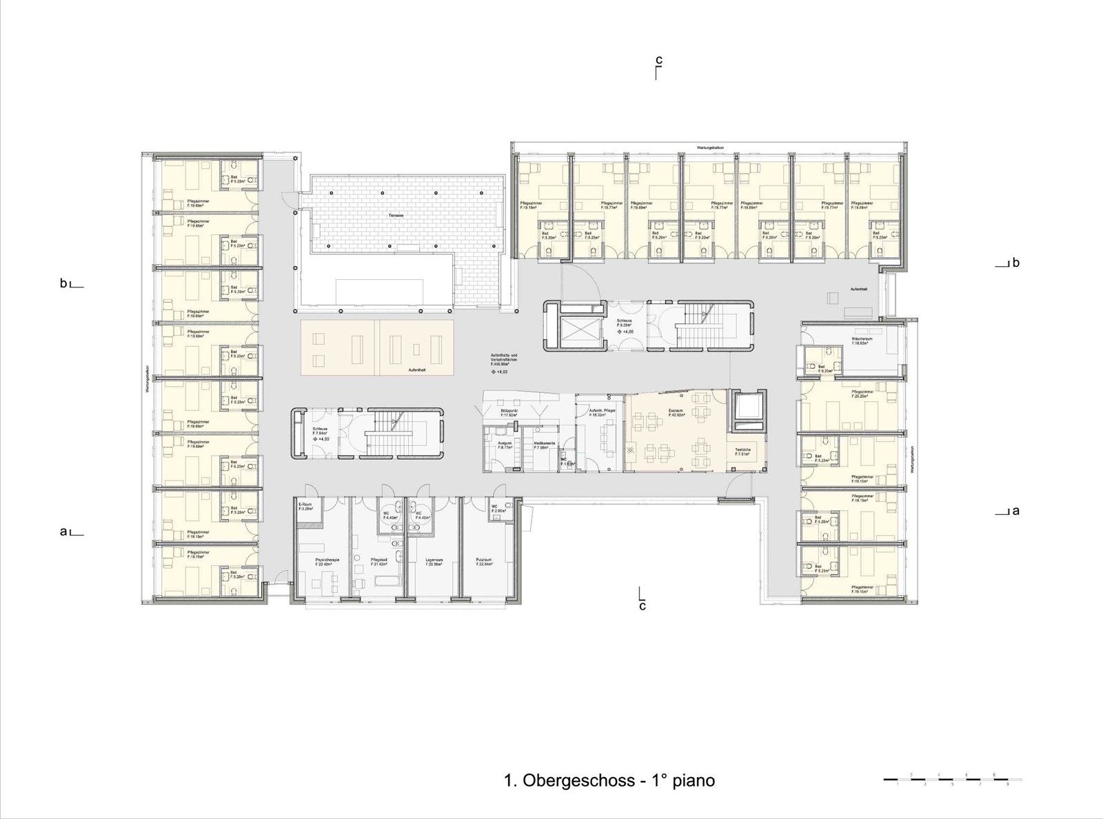
Am südlichen Ortsrand von Mitterolang entstand nach einer intensiven Planungsphase ein Wohn- und Pflegeheim für das Konsortium Mittleres Pustertal. Das leicht ansteigende Grundstück in zentraler Lage, umgeben von Schule, Kindergarten und Vereinshaus, öffnet sich nach Süden zu den Feldern und den Dolomiten. Der klar gegliederte Baukörper integriert zwei Pflegeeinheiten mit jeweils zwanzig Bewohnern, Altenwohnungen, Arztambulatorium, Pflegeräume, Verwaltung und ein öffentliches Café. Zwei eingeschnittene Höfe strukturieren das Volumen, schaffen Orientierung und belichten die Innenräume. Großzügige Verglasungen öffnen die Gemeinschaftsbereiche zu den Gärten und Terrassen. Im Untergeschoss liegen Küche, Wäscherei, Personalräume, Technik und Tiefgarage. Die Pflegegeschosse bieten helle Zimmer mit weitem Ausblick und differenzierten Aufenthaltszonen. Eine begrünte Dachterrasse erweitert das gemeinschaftliche Angebot. Das Gebäude, in einer klaren Architektursprache formuliert, erfüllt den Klimahaus-A-Standard mit einer Energiekennzahl von 13,68 kWh/m²a.

Details

  • Lage:
    Mitterolang
  • Volumen:
    19.730 m³
  • Auftraggeber:
    Wohn- und Pflegeheime Mittleres Pustertal
  • Planung:
    2004/07
  • Bauzeit:
    2008/10
Fotograf/In: Jürgen Eheim, aichner_seidl ARCHITEKTEN
[ nebenbei ]